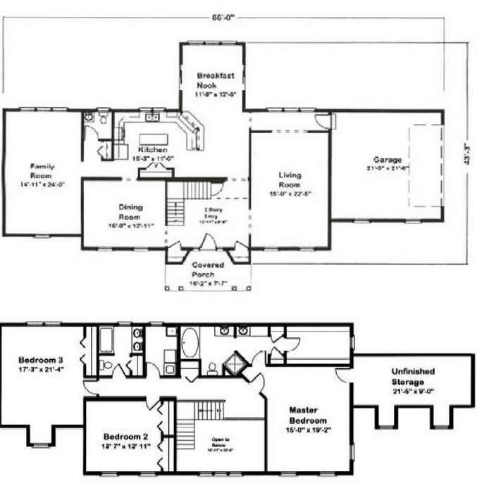
PRINT THIS FLOOR PLAN

Whittaker II - AA / 3287 sq. ft.

3 Bedrooms – 2 1/2 Bathrooms