PRINT THIS FLOOR PLAN

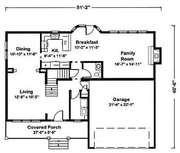
Westgate - EH / 2135 sq. ft.

3 Bedrooms – 2 1/2 Bathrooms