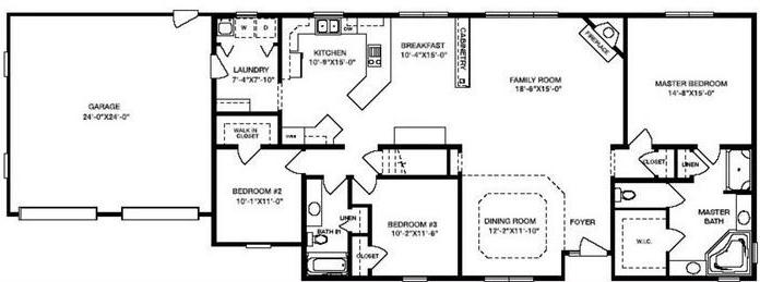
PRINT THIS FLOOR PLAN

Victory - AA / 1953 sq. ft.

3 Bedrooms – 2 Bathrooms