PRINT THIS FLOOR PLAN

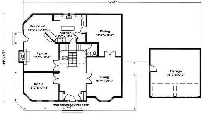
Victoria II - AA / 3637 sq. ft.

4 Bedrooms – 3 1/2 Bathrooms