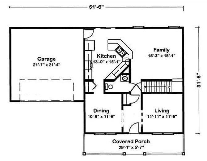
PRINT THIS FLOOR PLAN

Ultima Plus - EH / 1820 sq. ft.

3 Bedrooms – 2 1/2 Bathrooms