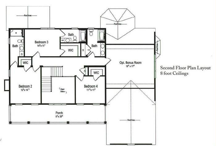
PRINT THIS FLOOR PLAN

Tidewater - AA / 3139 sq. ft.

4 Bedrooms – 4 1/2 Bathrooms