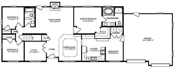
PRINT THIS FLOOR PLAN

Thurston - AA / 1638 sq. ft.

3 Bedrooms – 2 Bathrooms