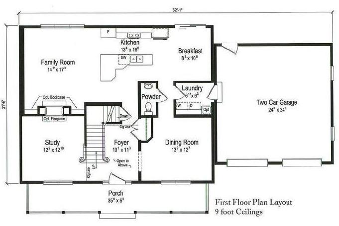
PRINT THIS FLOOR PLAN

Sycamore - AA / 2394 sq. ft.

4 Bedrooms – 2 1/2 Bathrooms