PRINT THIS FLOOR PLAN

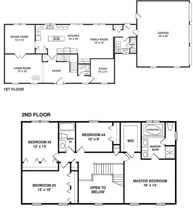
The Strathmore - PL / 2888 sq. ft.

4 Bedrooms – 2 Full and (2) 1/2 Bathrooms