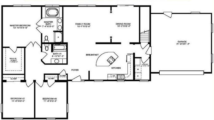
PRINT THIS FLOOR PLAN

Stillwater - AA / 1817 sq. ft.

3 Bedrooms – 2 Bathrooms