PRINT THIS FLOOR PLAN

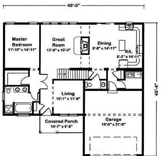
Spruce Falls - EH / 2066 sq. ft.

4 Bedrooms – 2 1/2 Bathrooms