PRINT THIS FLOOR PLAN

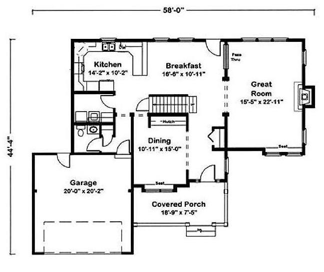
Shetland - AA / 2266 sq. ft.

4 Bedrooms – 2 1/2 Bathrooms