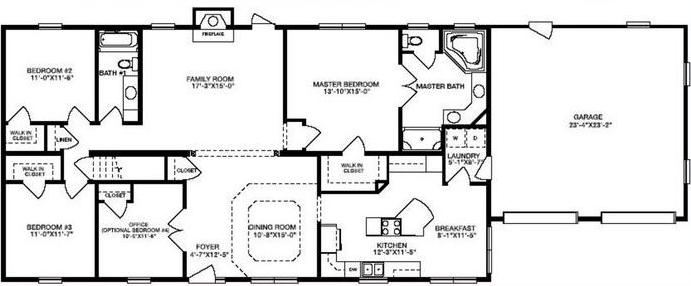
PRINT THIS FLOOR PLAN

Sebastian - AA / 1890 sq. ft.

3 Bedrooms – 2 Bathrooms