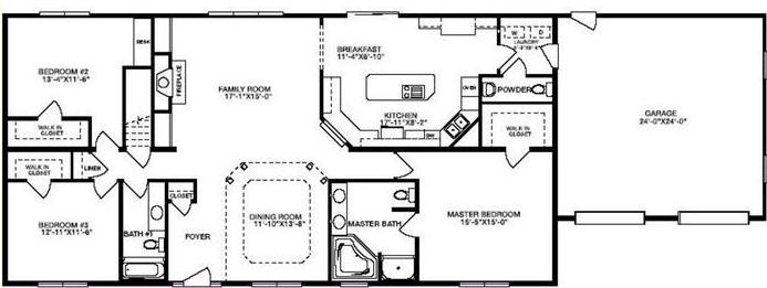
PRINT THIS FLOOR PLAN

Scottsdale - AA / 2016 sq. ft.

3 Bedrooms – 2 1/2 Bathrooms