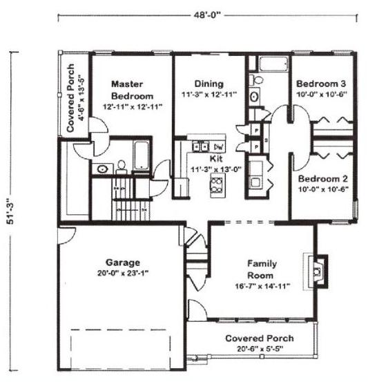
PRINT THIS FLOOR PLAN

Scarborough - AA / 1585 sq. ft.

3 Bedrooms – 2 Bathrooms