PRINT THIS FLOOR PLAN

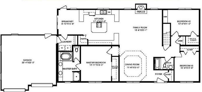
Rochester - AA / 1922 sq. ft.

3 Bedrooms – 2 Bathrooms