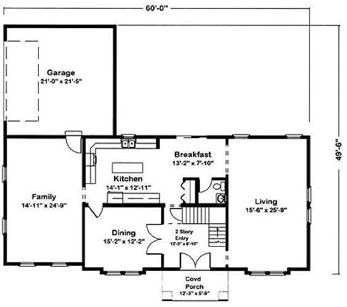
PRINT THIS FLOOR PLAN

Roaring Brook II - AA / 3099 sq. ft.

4 Bedrooms – 2 1/2 Bathrooms