PRINT THIS FLOOR PLAN

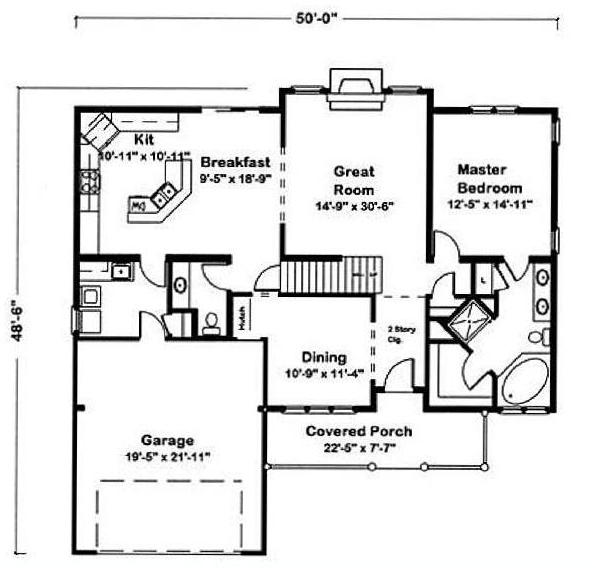
Regency - AA / 2210 sq. ft.

4 Bedrooms – 2 1/2 Bathrooms