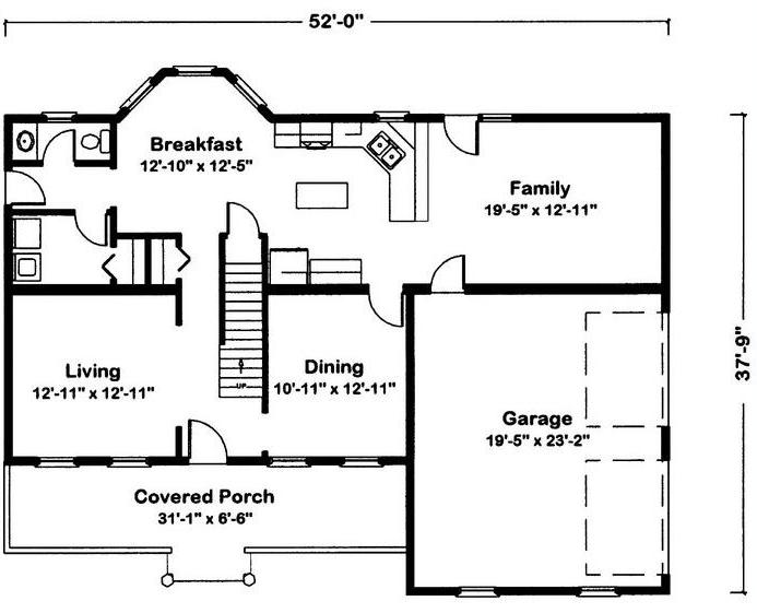
PRINT THIS FLOOR PLAN

Potomac II - AA / 2049 sq. ft.

3 Bedrooms – 2 1/2 Bathrooms