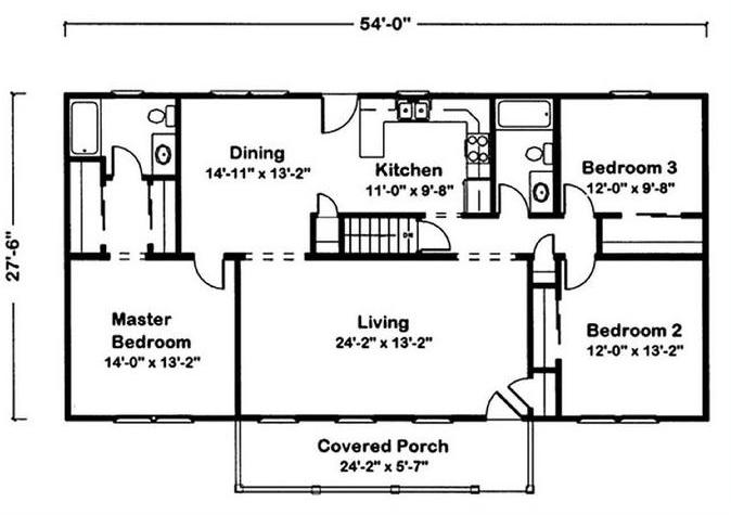
PRINT THIS FLOOR PLAN

Pinewood 4A - EH / 1462 sq. ft.

3 Bedrooms – 2 Bathrooms