PRINT THIS FLOOR PLAN

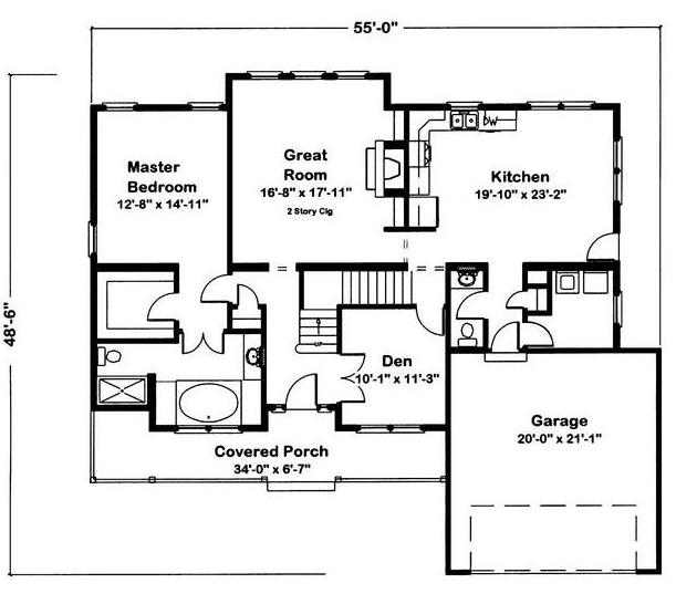
Pennington - AA / 2551 sq. ft.

4 Bedrooms – 3 1/2 Bathrooms