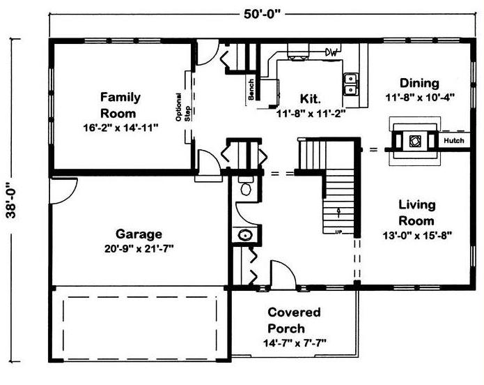
PRINT THIS FLOOR PLAN

Paxton - AA / 2202 sq. ft.

3 Bedrooms – 2 1/2 Bathrooms