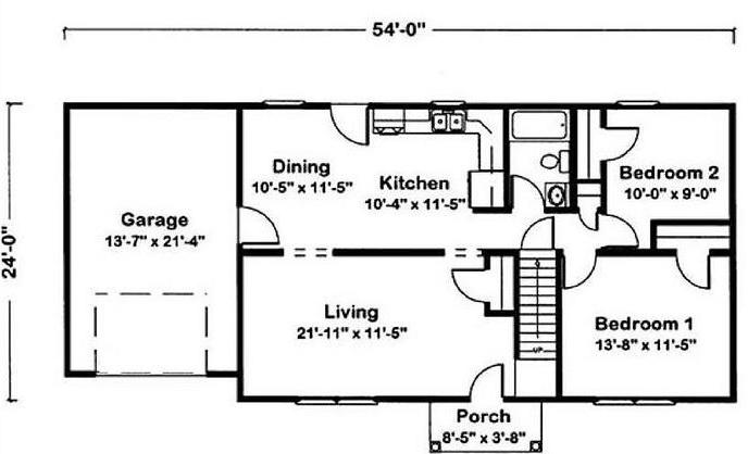
PRINT THIS FLOOR PLAN

Patriot 1A- EH / 929 sq. ft.

2 Bedrooms – 1 Bathroom