PRINT THIS FLOOR PLAN

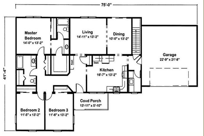
Palmyra - EH / 1705 sq. ft.

3 Bedrooms – 2 Bathrooms