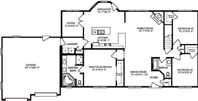
PRINT THIS FLOOR PLAN

Nottoway - AA / 1784 sq. ft.

3 Bedrooms – 2 Bathrooms