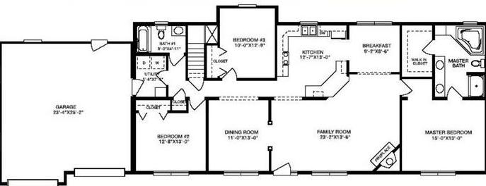
PRINT THIS FLOOR PLAN

Merion - AA / 1796 sq. ft.

3 Bedrooms – 2 Bathrooms