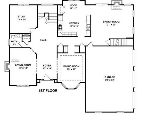
PRINT THIS FLOOR PLAN

The Marlboro - PL / 4960 sq. ft.

4 Bedrooms – 2 1/2 Bathrooms