PRINT THIS FLOOR PLAN

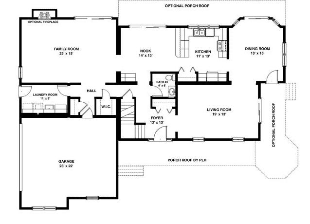
The Marieta - PL / 3120 sq. ft.

3 Bedrooms – 2 1/2 Bathrooms