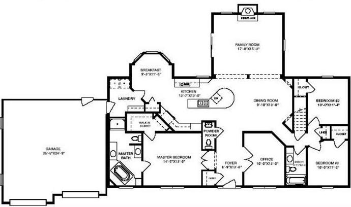
PRINT THIS FLOOR PLAN

Lincoln - AA / 1992 sq. ft.

3 Bedrooms – 2 1/2 Bathrooms