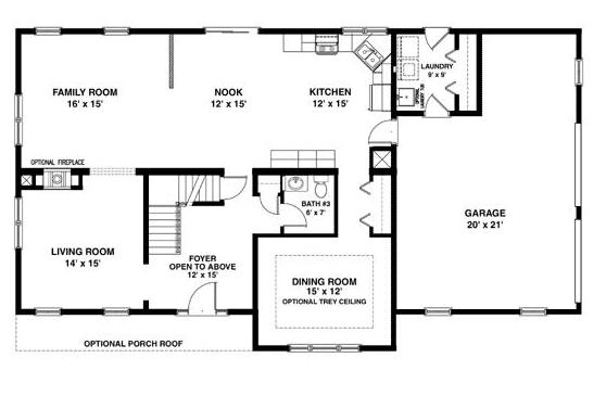
PRINT THIS FLOOR PLAN

The Lafayette - PL / 2799 sq. ft.

4 Bedrooms – 2 1/2 Bathrooms