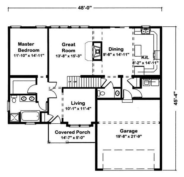
PRINT THIS FLOOR PLAN

Lanchester - AA / 2075 sq. ft.

4 Bedrooms – 2 1/2 Bathrooms