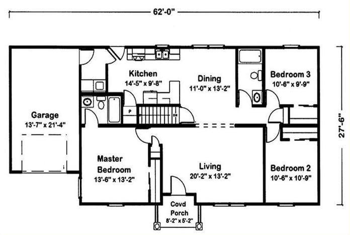
PRINT THIS FLOOR PLAN

Lakewood 4A - EH / 1276 sq. ft.

3 Bedrooms – 2 Bathrooms