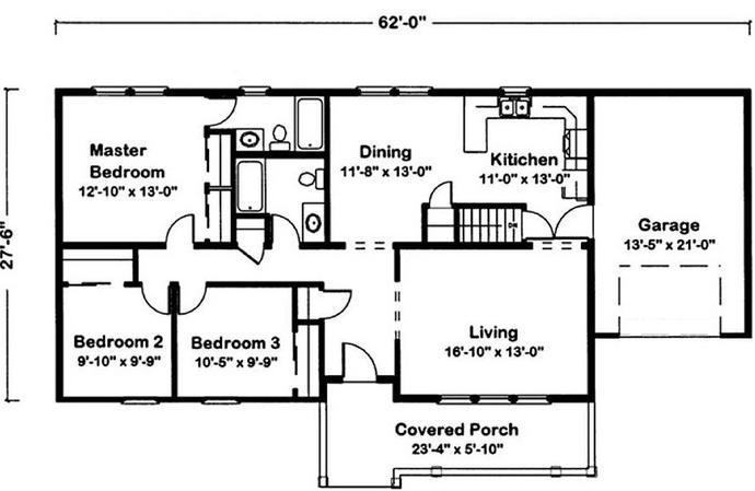
PRINT THIS FLOOR PLAN

Lakewood 3A - EH / 1294 sq. ft.

3 Bedrooms – 2 Bathrooms