PRINT THIS FLOOR PLAN

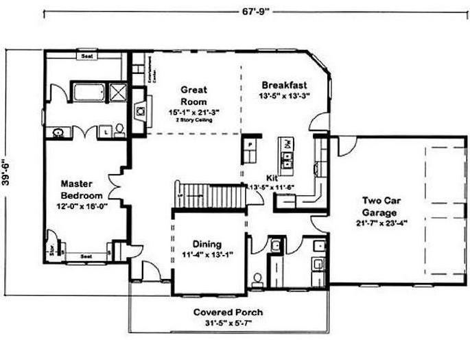
Kingsley II - AA / 2626 sq. ft.

3 Bedrooms – 2 1/2 Bathrooms