PRINT THIS FLOOR PLAN

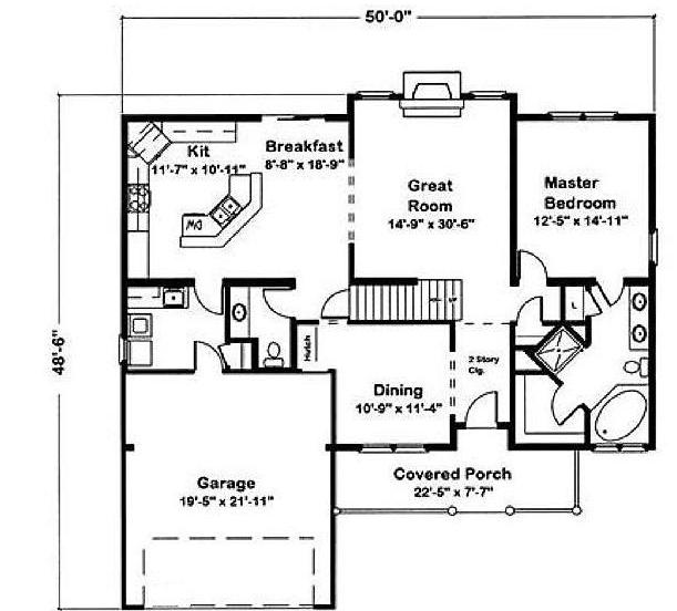
Keystone - EH / 2168 sq. ft.

4 Bedrooms – 2 1/2 Bathrooms