PRINT THIS FLOOR PLAN

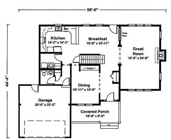
Janbrook - EH / 2252 sq. ft.

4 Bedrooms – 2 1/2 Bathrooms