PRINT THIS FLOOR PLAN

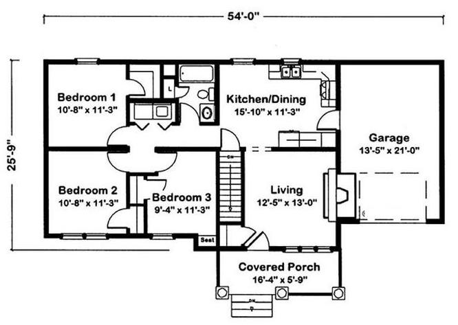
Independence 3A - EH / 955 sq. ft.

3 Bedrooms – 1 Bathroom