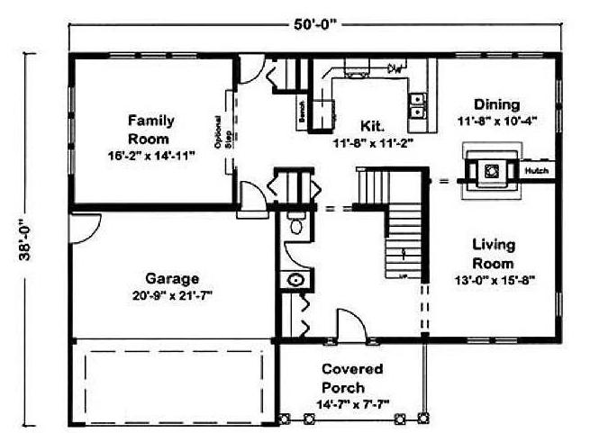
PRINT THIS FLOOR PLAN

Hillsdale - EH / 2132 sq. ft.

3 Bedrooms – 2 1/2 Bathrooms