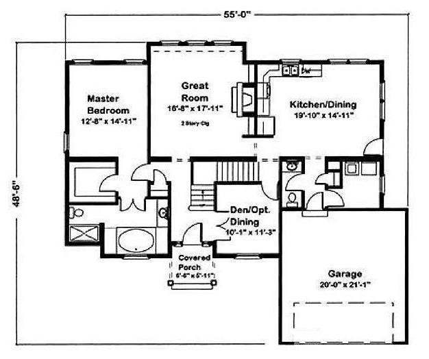
PRINT THIS FLOOR PLAN

Highland - EH / 2458 sq. ft.

4 Bedrooms – 3 1/2 Bathrooms