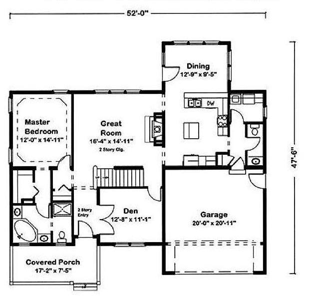
PRINT THIS FLOOR PLAN

Hazeltine - AA / 2042 sq. ft.

3 Bedrooms – 2 1/2 Bathrooms