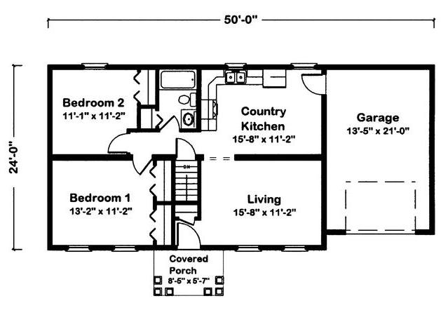
PRINT THIS FLOOR PLAN

Hampshire II - AA / 864 sq. ft.

2 Bedrooms – 1 Bathroom