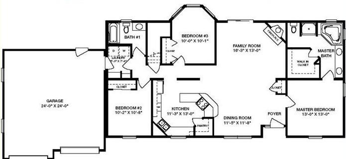
PRINT THIS FLOOR PLAN

Haledon - AA / 1560 sq. ft.

3 Bedrooms – 2 Bathrooms