PRINT THIS FLOOR PLAN

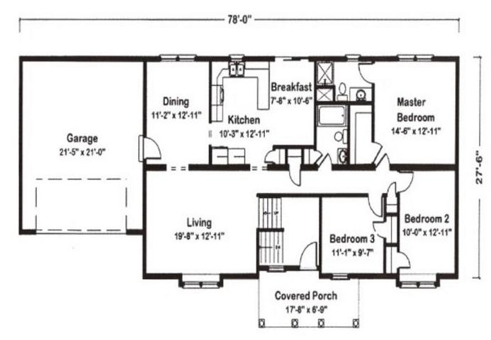
Grandview II - AA / 1529 sq. ft.

3 Bedrooms – 1 3/4 Bathrooms