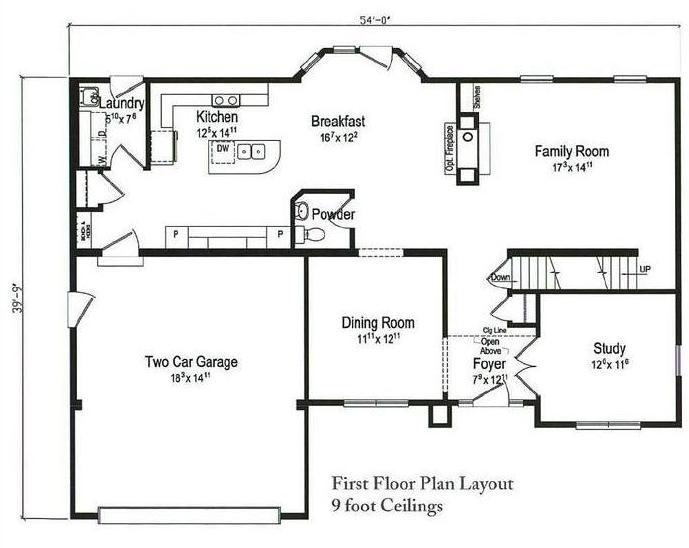
PRINT THIS FLOOR PLAN

Gracin - AA / 2632 sq. ft.

4 Bedrooms – 2 1/2 Bathrooms