PRINT THIS FLOOR PLAN

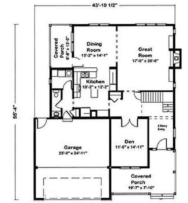
Glen Springs - EH / 2554 sq. ft.

4 Bedrooms – 3 1/2 Bathrooms