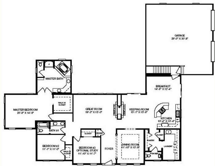
PRINT THIS FLOOR PLAN

Forsyth - AA / 2555 sq. ft.

3 Bedrooms – 2 1/2 Bathrooms