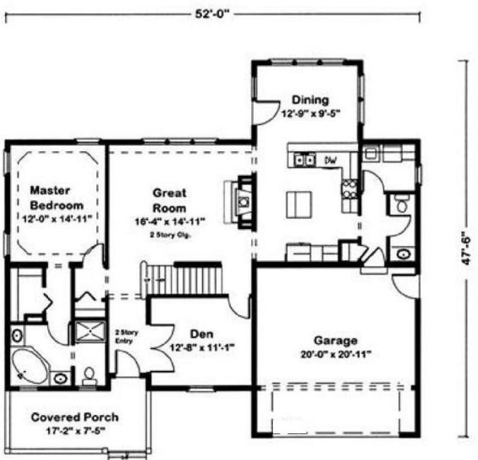
PRINT THIS FLOOR PLAN

Fairview - EH / 2003 sq. ft.

3 Bedrooms – 2 1/2 Bathrooms