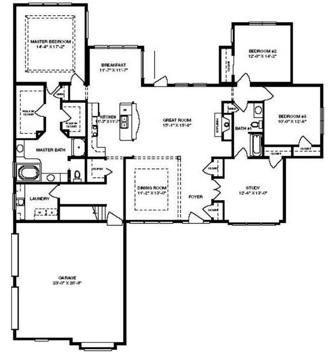
PRINT THIS FLOOR PLAN

Ellington - AA / 2396 sq. ft.

4 Bedrooms – 2 Bathrooms