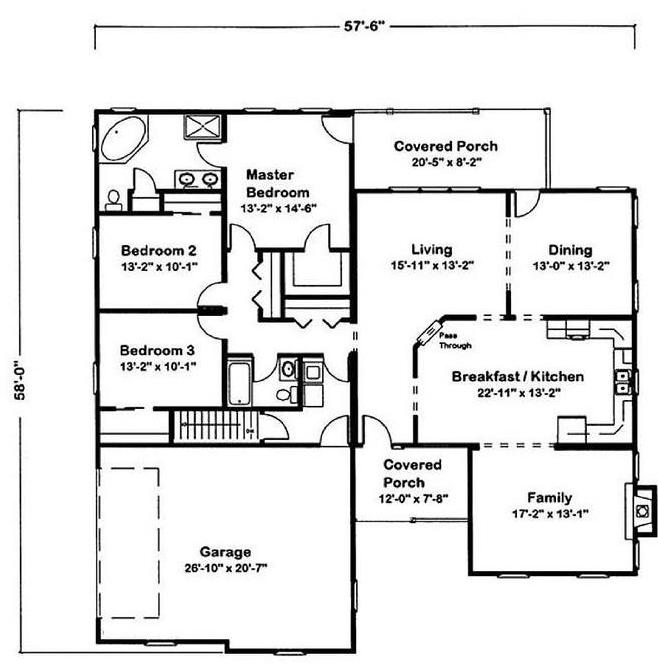
PRINT THIS FLOOR PLAN

Easton - EH / 2027 sq. ft.

3 Bedrooms – 2 Bathrooms