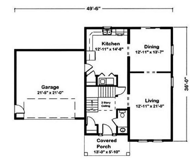
PRINT THIS FLOOR PLAN

Dutchess II - AA / 1859 sq. ft.

3 Bedrooms – 2 1/2 Bathrooms